Sotto l’attuale chiesa di S. Marcello ricostruita nel sec. XVI, uno scavo archeologico (1990-2001) ha permesso di individuare la basilica tardoantica con le sue trasformazioni medievali. S. Marcello si trova in un'area urbana in cui si è verificato, dopo l'antichità, un forte innalzamento del livello stradale. Intorno al 1100 il pavimento della chiesa fu rialzato di circa 85 cm e due absidiole furono aggiunte alle estremità delle navatelle. Del nuovo litostrato in opus sectile cosmatesco si sono conservati esigui resti. A questa stessa fase appartiene anche un antico cippo recante sul fronte una decorazione in opus sectile e l’iscrizione menzionante le reliquie dei Santi Giovanni, Blasto, Diogene e Longino. Nella seconda metà del XII sec. la chiesa fu allungata di c. 7 m verso occidente con l’aggiunta di un transetto con un’abside sull’asse centrale, mentre due absidi più piccole furono erette alle estremità sud e nord del transetto. Il livello del pavimento del nuovo transetto era di circa 140-170 cm più alto di quello della navata. Altri arredi che ci si aspetterebbero in una chiesa del XII secolo, come una schola cantorum o un ciborio d'altare, non sono documentati, anche se la loro esistenza è probabile. Un'ultima fase di costruzione, poco documentata, ebbe luogo alla fine del XV secolo. Un grande incendio nel 1519 distrusse quasi completamente quella che era la chiesa tardoantica. Il nuovo edificio, a navata unica con cappelle laterali, ricevette una nuova facciata rivolta verso la via Lata e una nuova abside a est; fu quindi ruotato di 180° rispetto alla chiesa precedente. Questo edificio nella sua facies settecentesca, con una facciata barocca del XVII secolo, si è conservato fino ai giorni nostri.

Abb. 14-MarcelloalCorso_002.jpgDownload
Rom, S. Marcello al Corso, hochmittelalterlicher Campanile neben der Kirche, Romplan von Antonio Tempesta von 1593 (Ehrle, Tempesta 1932)
BY-NC-SA 4.0
Abb. 15-MarcelloalCorso_001.jpgDownload
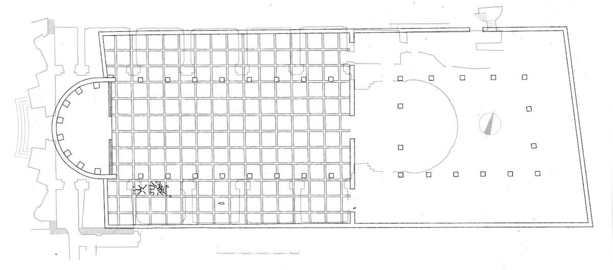
Rom, S. Marcello al Corso, rekonstruierter Grundriss der spätantiken Basilika (nach Episcopo) über dem Grundriss der Kirche des 16. Jhs. (Episcopo, Il Titulus Marcelli 2003 und CBCR 2 1959)
BY-NC-SA 4.0
Abb. 16-MarcelloalCorso_003.tifDownload
Rom, S. Marcello al Corso, die Lage des Campaniles nach Episcopo (a) und Krautheimer (b) (Episcopo, Il Titulus Marcelli 2003 und CBCR 2 1959)
BY-NC-SA 4.0
Abb. 17-MarcelloalCorso_004.jpgDownload
Rom, S. Marcello al Corso, Boden des 6./7. Jhs. in situ (Foto Senekovic 2004)
© Senekovic, Darko
BY-NC-SA 4.0
Abb. 18-MarcelloalCorso_005.jpgDownload
Rom, S. Marcello al Corso, Pavimentfragmente in opus sectile. a-d: 12. Jh.; 1-2: 12. Jh. oder spätantik bzw. frühmittelalterlich (Foto Senekovic 2004)
© Senekovic, Darko
BY-NC-SA 4.0
Abb. 19-MarcelloalCorso_006.tifDownload
Rom, S. Marcello al Corso, Fassade des 16. Jhs., über dem Portal ist der Bogen der abgebrochenen Apsis zu sehen (Franzini, Cose maravigliose 1588)
BY-NC-SA 4.0
Abb. 20-MarcelloalCorso_007.tifDownload
Rom, S. Marcello al Corso, Reste des hochmittelalterlichen Sägezahnfrieses neben der Travertinüberblendung des 17. Jhs. (Foto Senekovic 2016)
© Senekovic, Darko
BY-NC-SA 4.0
Abb. 21-MarcelloalCorso_008.jpgDownload
Rom, S. Marcello al Corso, Sägezahnfries am hochmittelalterlichen Querhaus (Ostwand des Nordflügels), vom Dach des heutigen Seitenschiffes gesehen (Foto Senekovic 2004)
© Senekovic, Darko
BY-NC-SA 4.0
Abb. 22-MarcelloalCorso_009.jpgDownload
Rom, S. Marcello al Corso, Altar mit Reliquien der heiligen Johannes, Blastus, Diogenes und Longinus. Links Frontansicht, rechts antikes Relief an der Flanke (Foto Senekovic 2017)
© Senekovic, Darko
BY-NC-SA 4.0
Abb. 23-MarcelloalCorso_010.jpgDownload
Rom, S. Marcello al Corso, Altar mit Reliquien der heiligen Johannes, Blastus, Diogenes und Longinus, heutige Einbindung in den Altar (Foto Senekovic 2017)
© Senekovic, Darko
BY-NC-SA 4.0
Abb. 26-MarcelloalCorso_013.jpgDownload
Rom, S. Marcello al Corso, Grundriss und Längsschnitt (nach Nestori 1982)
BY-NC-SA 4.0
Abb. 27-MarcelloalCorso_014.tifDownload
Rom, S. Marcello al Corso, Immersionsbecken des mittelalterlichen Baptisteriums (Foto Senekovic 2017)
© Senekovic, Darko
BY-NC-SA 4.0
N° sulla mappa
47
Nome chiesa
S. Marcello
Esistente
Coordinate
41.8987, 12.48189
Indirizzo
Piazza S. Marcello, 5
Rione
Trevi (II)
N° sulla mappa Nolli
286
Cronologia
c. 1100, seconda metà sec. XII
Parole chiave
basilica tardoantica, innalzamento del livello stradale, absidi laterali, transetto, campanile, pavimento cosmatesco, opus sectile, altare, cippo antico, altare reliquiario
Stato della ricerca
Conclusa
Pubblicato in

Corpus Cosmatorum II, volume 4

2D