It was generally believed that S. Nicola in Carcere was built around 1128. However, the core of the current plan of S. Nicola may date back to the years of Pope Urban II (1088-1099). During the construction, spolia from three ancient temples were used, integrating columns and parts of the walls of the ancient cella left in situ into the church building. It can be assumed that these temples were first converted into churches in the Early Middle Ages. The transept and crypt date back to the time of Urban II, modelled on the abbey church of Montecassino. The dedicatory inscription of 1128 may not refer to a new construction of the church of S. Nicola, but rather to the completion of a new decoration. It can therefore be assumed that the consecration of 1128 perhaps only referred to the addition of new furnishings, as happened in other churches in the 12th century. Inside, a floor, liturgical furnishings and frescoes in the crypt were probably added; there was also perhaps a slight shift of the four columns near the presbytery towards the aisles to make room for a presumed schola cantorum. The 13th-century interventions under Giovanni Gaetano Orsini (1244-1277) include a Gothic side portal and probably a rose window. The current appearance of the building results mainly from extensive 19th-century restorations.

Abb. 458-NicolainCarcere_001.jpgDownload
Approximative Rekonstruktion der drei Tempel am Forum Holitorium mit übergeblendetem hochmittelalterlichem Grundriss von S. Nicola in Carcere. Hellgrau: Tempelgrundrisse, südl. Tempel: nach B. Peruzzi, mittl. und nördl. Tempel: nach A. Labacco (Crozzoli Aite 1981), dunkelgrau: In die aufgehenden Strukturen der hochmittelalterlichen Kirche übernommene Elemente der Tempel, schwarz: Die hochmittelalterliche Kirche (nach Palombi 2006), Punktlinien: Umgebendes Erdreich, Überblendung und Ergänzungen (Yorck von Wartenburg / D. Hoesli 2017)
BY-NC-SA 4.0
Abb. 459-NicolainCarcere_002.jpgDownload
Rom, S. Nicola in Carcere, Hypothetische Rekonstruktion des hochmittelalterlichen Grundrisses (Palombi 2006)
BY-NC-SA 4.0
Abb. 460-NicolainCarcere_004.jpegDownload
Rom, S. Nicola in Carcere, Ansicht von Süden (Foto Yorck von Wartenburg 2015)
© Yorck von Wartenburg, Angela
BY-NC-SA 4.0
Abb. 461-NicolainCarcere_005.jpegDownload
Rom, S. Nicola in Carcere, Ansicht von Norden (Foto Yorck von Wartenburg 2015)
© Yorck von Wartenburg, Angela
BY-NC-SA 4.0
Abb. 462-NicolainCarcere_006.jpgDownload
Rom, S. Nicola in Carcere, Südlicher Obergaden, 1:50 (Palombi 2006)
BY-NC-SA 4.0
Abb. 463-NicolainCarcere_007.jpegDownload
Rom, S. Nicola in Carcere, Westansicht (Foto Yorck von Wartenburg 2015)
© Yorck von Wartenburg, Angela
BY-NC-SA 4.0
Abb. 464-NicolainCarcere_008.jpgDownload
Achille Pinelli, Ansicht von der Piazza di Monte Savello auf die Nordseite von S. Nicola in Carcere, Aquarell, 1834 (Brizzi, Pinelli 1985)
BY-NC-SA 4.0
Abb. 465-NicolainCarcere_009.jpegDownload
G. Franzini, Die Fassade von S. Nicola in Carcere, 1588 (Cose Maravigliose 1588)
BY-NC-SA 4.0
Abb. 466-NicolainCarcere_010.jpegDownload
Rom, S. Nicola in Carcere, Mauerwerk am Fuss des Campanile, Ostseite (Foto Yorck von Wartenburg 2015)
© Yorck von Wartenburg, Angela
BY-NC-SA 4.0
Abb. 467-NicolainCarcere_012.jpegDownload
Rom, S. Nicola in Carcere, das gotische Portal in der Nordwand (Foto Yorck von Wartenburg 2015)
© Yorck von Wartenburg, Angela
BY-NC-SA 4.0
Abb. 468-NicolainCarcere_013.jpgDownload
Rom, S. Nicola in Carcere, Innenraum, Sicht nach Westen (Foto Yorck von Wartenburg 2015)
© Yorck von Wartenburg, Angela
BY-NC-SA 4.0
Abb. 469-NicolainCarcere_011.jpegDownload
Rom, S. Nicola in Carcere, die Granitrota im Hauptschiff von S. Nicola (Foto Yorck von Wartenburg 2015)
© Yorck von Wartenburg, Angela
BY-NC-SA 4.0
Abb. 470-NicolainCarcere_014.jpgDownload
Die Fassade von S. Nicola in Carcere, Zeichnung, 1700–21. Rom, Archivio Segreto Vaticano, Miscellanea Arm. VII, 103 (nach Palombi 2006)
BY-NC-SA 4.0
Abb. 472-NicolainCarcere_016.tifDownload
Hector Lefuel, Grundrissplan von S. Nicola in Carcere und umgebenden Gebäuden, 1843 (D’Espouy 1843)
BY-NC-SA 4.0
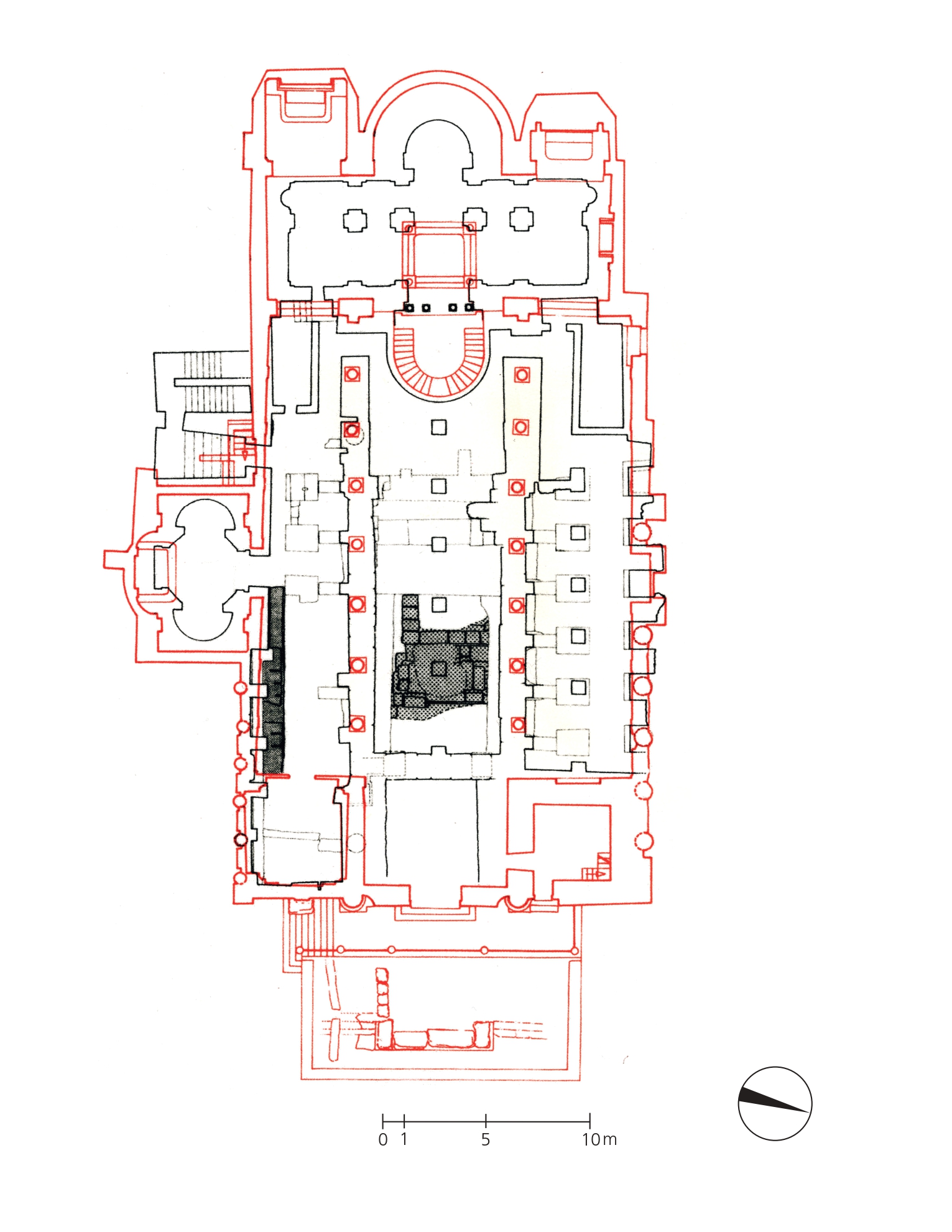
Taf. 51-NicolainCarcere_003.jpgDownload
Rom, S. Nicola in Carcere, heutiger Grundriss (rot) mit darunterliegenden Strukturen (schwarz) (Palombi 2006)
BY-NC-SA 4.0
Number in map
80
Church name
S. Nicola in Carcere
Existing
Coordinates
41.89109, 12.47993
Address
Via del Teatro di Marcello 46
Rione
Ripa (XII)
Nolli's map #
1038
Chronology
second half 11th century, first half 12th cent., second half 13th century
Keywords
spolia of ancient temples, transept, crypt, Pope Urban II, Montecassino, liturgical furnishings, floor, frescoes, columns, Giovanni Gaetano Orsini, Gothic portal, Gothic rose window.
Research status
Completed
Published in

Corpus Cosmatorum II, volume 4

2D