The church of Santa Maria in Cosmedin, oriented southeast, is a three-aisled basilica with three apses, a crypt, an external narthex, a porch (prothyron), and a bell tower. The church was established within the pre-existing structures of a late antique colonnaded hall in the 6th century. Its identification as a diaconal church has been documented since the mid-8th century. The structure underwent significant expansion during the pontificate of Pope Hadrian I (772–795), who added a crypt and transformed the original building into a three-aisled church. Subsequently, under Pope Nicholas I (858–867), the church was restored and enriched with the addition of an oratory, a triclinium, and a sacristy. Traces of murals from both Carolingian interventions are still preserved today. The consecration of the altar by Callixtus II (1110–1124) in 1123 marked the completion of significant building activity, including the construction of the bell tower and the modernization of the portico and the porch. The façade was renewed with the addition of a “cavetto” around 1300 under Cardinal Francesco Caetani. Later post-medieval interventions, including the construction of the façade by Giuseppe Sardi in 1718, significantly altered the original appearance. Between 1896 and 1899, restorations directed by Giovanni Battista Giovenale restored the medieval appearance, removing Baroque modifications and integrating missing columns with spolia materials. The building preserves early medieval decorative elements, including Byzantine and Carolingian marble fragments, inscriptions, and Cosmatesque liturgical furnishings from the first quarter of the 12th century, attributed to the workshop of Paulus. Noteworthy features include the opus sectile pavement, the Gospel ambo, the Epistle pulpit, the papal throne, the Paschal candlestick signed by Paschalis (dated to the mid-13th century), and the Gothic ciborium signed by Deodatus (c. 1300). The wall paintings in the central nave and those in the tomb of Alfanus, dating to the 12th century, bear stylistic analogies with those in Castel Sant’Elia. In the upper register of the frescoes decorating the high clerestory walls, dating around 1120–1123, bearded masks with horns appear, believed to be copies of the “Bocca della Verità” (Mouth of Truth). This suggests that the renowned artifact was already located at the church by the 12th century, though it likely had been there for a much longer time.

Abb. 107-MariainCosmedin_002.tifDownload
Rom, Forum Boarium, Ausschnitt aus der Forma Urbis Romae (nach Lanciani, Forma Urbis Romae 1883)
BY-NC-SA 4.0
Abb. 108-MariainCosmedin_003.tifDownload
Rom, S. Maria in Cosmedin, antike Rundscheibe (Bocca della Verità) vor der nördlichen Schmalwand der Vorhalle (Foto BHR Fontolan 2017)
Bibliotheca Hertziana © freigegeben
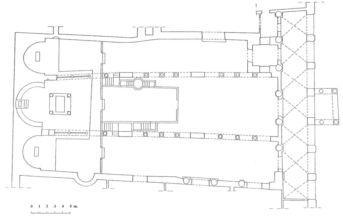
Abb. 110-MariainCosmedin_006.tifDownload
Rom, S. Maria in Cosmedin, Grundriss (nach CBCR II 1959)
BY-NC-SA 4.0
Abb. 111-MariainCosmedin_007.tifDownload
Rom, S. Maria in Cosmedin, Nördliche Seitenschiffsmauer mit den verbauten Säulen der spätantiken Halle (Foto BHR Fontolan 2017)
Bibliotheca Hertziana © freigegeben
Abb. 112-MariainCosmedin_008.tifDownload
Rom, S. Maria in Cosmedin, Ost-West-Längsschnitt der Südseite mit Mauerwerksbefund und Freskenresten nach Giovenale, La Basilica 1972 (CBCR II 1959)
BY-NC-SA 4.0
Abb. 113-MariainCosmedin_009.tifDownload
Rom, S. Maria in Cosmedin, Ost-West-Längsschnitt der Südseite mit Mauerwerksbefund und partiellen Rekonstruktionsvorschlägen (nach CBCR II 1959)
BY-NC-SA 4.0
Abb. 114-MariainCosmedin_010.tifDownload
Rom, S. Maria in Cosmedin, Schrankenplatten aus dem 6. Jh. (Stich nach Crescimbeni, Sta. Maria in Cosmedin 1715)
BY-NC-SA 4.0
Abb. 115-MariainCosmedin_011.tifDownload
Rom, S. Maria in Cosmedin, Blick von Norden in den Altarbezirk (Foto BHR Fontolan 2017)
Bibliotheca Hertziana © freigegeben
Abb. 116-MariainCosmedin_012.tifDownload
Rom, S. Maria in Cosmedin, Donationsinschrift des Dux Eusthatius verteilt auf zwei Inschriftentafeln zuseiten des Hauptportals, 752–757 (Foto BHR Fontolan 2017)
Bibliotheca Hertziana © freigegeben
Abb. 117-MariainCosmedin_013.tifDownload
Rom, S. Maria in Cosmedin, Aufriss-Rekonstruktionen der Nordwand des karolingischen Mittelschiffes von Krautheimer (oben) und Fusciello (unten) (nach Fusciello, Santa Maria in Cosmedin 2011)
BY-NC-SA 4.0
Abb. 118-MariainCosmedin_014.tifDownload
Rom, S. Maria in Cosmedin, nördliche Hochwand des südlichen Seitenschiffes, Detailbefund mit Malereifragment, Kopf des hl. Nazarus (Zeichnung nach Giovenale, La Basilia 1927)
BY-NC-SA 4.0
Abb. 119-MariainCosmedin_015.tifDownload
Rom, S. Maria in Cosmedin, Grundriss vor 1895 (nach Giovenale, La Basilica 1927)
BY-NC-SA 4.0
Abb. 120-MariainCosmedin_016.tifDownload
Rom, S. Maria in Cosmedin, Krypta Richtung Osten (Foto BHR Schudt zw. 1934/44)
BY-NC-SA 4.0
Abb. 121-MariainCosmedin_017.tifDownload
Rom, S. Maria in Cosmedin, Krypta Richtung Norden (Foto BHR Leotta 2017)
O.C.S.A. © freigegeben
Abb. 122-MariainCosmedin_018.tifDownload
Rom, S. Maria in Cosmedin. Reliquienaltar in der Krypta (Foto BHR Leotta 2017)
BY-NC-SA 4.0
Abb. 124-MariainCosmedin_020.tifDownload
Rom, S. Maria in Cosmedin, Fragmente des ehemaligen Lapidariums im Obergeschoss der Vorhalle, darunter der Gipsabguss einer im Turm verbauten Säule der karolingischen Presbyteriumsschranke und ein Teilstück des Pergula-Balkens mit der Stifterinschrift des Gregorius Notarius (Foto BHR Paeseler zw. 1938/44)
BY-NC-SA 4.0
Abb. 126-MariainCosmedin_023.TIFFDownload
Rom, S. Maria in Cosmedin, Grundriss, Baldassare Peruzzi zugeschrieben, Florenz, Gabinetto Disegni e Stampe degli Uffizi, Inv.Nr. Uff. 660 A v (CBCR II 1959)
BY-NC-SA 4.0
Abb. 127-MariainCosmedin_024.tifDownload
Rom, S. Maria in Cosmedin, Ostseite des Turmes vom südlichen Seitenschiff (Foto BHR Fontolan 2017)
Bibliotheca Hertziana © freigegeben
Abb. 128-MariainCosmedin_025.tifDownload
Rom, S. Maria in Cosmedin, Nordwestecke im Inneren des Turmerdgeschosses mit teils abgearbeitetem und teilweise erhaltenem Gesims (Foto Claussen 2016)
© Claussen, Peter Cornelius
BY-NC-SA 4.0
Abb. 129-MariainCosmedin_027.tifDownload
Rom, S. Maria in Cosmedin, Südarkatur und Turmerdgeschoss (Foto BHR Fontolan 2017)
Bibliotheca Hertziana © freigegeben
Abb. 130-MariainCosmedin_028.tifDownload
Rom, S. Maria in Cosmedin, Aufriss der Turmostseite (nach Giovenale, La Basilica 1927)
BY-NC-SA 4.0
Abb. 134-MariainCosmedin_034.tifDownload
Rom, S. Maria in Cosmedin, Gewölbe des Prothyrons (Foto Schmitz 2006)
© Schmitz, Michael
BY-NC-SA 4.0
Abb. 135-MariainCosmedin_035.tifDownload
Rom, S. Maria in Cosmedin, ionisches Spolienkapitell vom vorderen Säulenpaar des Prothyrons (Foto Schmitz 2006)
© Schmitz, Michael
BY-NC-SA 4.0
Abb. 136-MariainCosmedin_036.tifDownload
Fassade von S. Maria in Cosmedin, Zeichnung des Anonymus Fabriczy, um 1570. Stuttgart, Graphische Sammlung der Staatsgalerie (CBCR II 1959)
BY-NC-SA 4.0
Abb. 137-MariainCosmedin_037.tifDownload
Rom, Piazza della Bocca della Verità mit Rundtempel des Hercules Victor und der Schauseite von S. Maria in Cosmedin, Zeichnung eines anonymen Nordeuropäers, 1603, Sammlung Curtis Baer, New York (CBCR II 1959)
BY-NC-SA 4.0
Abb. 138-MariainCosmedin_038.tifDownload
Rom, S. Maria in Cosmedin, Inneres der Vorhalle Richtung Norden (Foto BHR Fontolan 2017)
Bibliotheca Hertziana © freigegeben
Abb. 139-MariainCosmedin_039.tifDownload
Rom, S. Maria in Cosmedin, Längsschnitt der Westfassade (nach Giovenale, La Basilica 1927)
BY-NC-SA 4.0
Abb. 140-MariainCosmedin_040.tifDownload
Rom, S. Maria in Cosmedin, Grundriss (nach Crescimbeni, Sta. Maria in Cosmedin 1715)
BY-NC-SA 4.0
Abb. 141-MariainCosmedin_041.tifDownload
Rom, S. Maria in Cosmedin, Nordwestecke der Vorhalle mit den Resten einer Säule und eines Kragbalkens als konstruktive Teile der mittlerweile überbauten ehemaligen nördlichen Vorhallenöffnung (Foto Schmitz 2016)
© Schmitz, Michael
BY-NC-SA 4.0
Abb. 142-MariainCosmedin_042.tifDownload
Rom, S. Maria in Cosmedin, Westliche Säule der ehemaligen nördlichen Vorhallenöffnung, verbaut im Treppenhaus hinter der Portikusnordwand (Foto BHR Fontolan 2017)
Bibliotheca Hertziana © freigegeben
Abb. 143-MariainCosmedin_043.tifDownload
Rom, S. Maria in Cosmedin, östliche Säule der ehemaligen nördlichen Vorhallenöffnung, verbaut im Treppenhaus hinter der Portikusnordwand (Foto BHR Fontolan 2017)
Bibliotheca Hertziana © freigegeben
Abb. 144-MariainCosmedin_044.tifDownload
Rom, S. Maria in Cosmedin, Konsole und Malereifragment rechts oberhalb des Alfanusgrabes an der Ostwand der Portikus und Reste einer älteren Vorhalle (Foto BHR Fontolan 2017)
Bibliotheca Hertziana © freigegeben
Abb. 145-MariainCosmedin_045.tifDownload
Rom, S. Maria in Cosmedin, Schnitt durch Vorhalle, Westwand und Arkatur der spätantiken Säulenhalle mit angrenzendem Campanile (nach Giovenale, La Basilica 1927)
BY-NC-SA 4.0
Abb. 146-MariainCosmedin_046.tifDownload
Rom, S. Maria in Cosmedin, Hauptportal (Foto BHR Fontolan 2017)
Bibliotheca Hertziana © freigegeben
Abb. 147-MariainCosmedin_047.tifDownload
Rom, S. Maria in Cosmedin, Fragment vom rechten Pfosten des Hauptportals vermauert im Obergeschoss der Vorhalle (Foto BHR Fontolan 2017)
Bibliotheca Hertziana © freigegeben
Abb. 148-MariainCosmedin_048.jpgDownload
Rom, S. Maria in Cosmedin, Hauptportal, Detail des Sturzgewändes, Palmettenfries mit dem Lamm Gottes (Foto BHR Fontolan 2017)
BY-NC-SA 4.0
Abb. 149-MariainCosmedin_049.tifDownload
Rom, S. Maria in Cosmedin, Hauptportal, Gewände des linken Türpfostens, Detailaufnahmen (Fotos BHR Fontolan 2017)
Bibliotheca Hertziana © freigegeben
Abb. 150-MariainCosmedin_050.tifDownload
Rom, S. Maria in Cosmedin, Hauptportal, Gewände des rechten Türpfostens, Detailaufnahmen (Fotos BHR Fontolan 2017)
Bibliotheca Hertziana © freigegeben
Abb. 151-MariainCosmedin_051.tifDownload
Rom, S. Maria in Cosmedin, Hauptportal, Gewände des linken Türpfostens, Detailaufnahmen (Fotos BHR Fontolan 2017)
Bibliotheca Hertziana © freigegeben
Abb. 152-MariainCosmedin_052.tifDownload
Rom, S. Maria in Cosmedin, Hauptportal, Gewände des rechten Türpfostens, Detailaufnahmen (Fotos BHR Fontolan 2017)
Bibliotheca Hertziana © freigegeben
Abb. 153-MariainCosmedin_053.tifDownload
Rom, S. Maria in Cosmedin, Hauptportal, Gewände des linken Türpfostens, Detailaufnahmen (Fotos BHR Fontolan 2017)
Bibliotheca Hertziana © freigegeben
Abb. 154-MariainCosmedin_054.tifDownload
Rom, S. Maria in Cosmedin, Hauptportal, Gewände des rechten Türpfostens, Detailaufnahmen (Fotos BHR Fontolan 2017)
Bibliotheca Hertziana © freigegeben
Abb. 155-MariainCosmedin_055.tifDownload
Rom, S. Maria in Cosmedin, Hauptportal, Gewände des linken Türpfostens, Detailaufnahmen (Fotos BHR Fontolan 2017)
Bibliotheca Hertziana © freigegeben
Abb. 156-MariainCosmedin_056.tifDownload
Rom, S. Maria in Cosmedin, Hauptportal, Gewände des rechten Türpfostens, Detailaufnahmen (Fotos BHR Fontolan 2017)
Bibliotheca Hertziana © freigegeben
Abb. 157-MariainCosmedin_057.tifDownload
Rom, S. Maria in Cosmedin, Hauptportal, Gewände des linken Türpfostens, Detailaufnahmen (Fotos BHR Fontolan 2017)
Bibliotheca Hertziana © freigegeben
Abb. 158-MariainCosmedin_058.tifDownload
Rom, S. Maria in Cosmedin, Hauptportal, Gewände des rechten Türpfostens, Detailaufnahmen (Fotos BHR Fontolan 2017)
Bibliotheca Hertziana © freigegeben
Abb. 159-MariainCosmedin_059.tifDownload
Rom, S. Maria in Cosmedin, Hauptportal, Gewände des Sturzes (Foto Schmitz 2016)
© Schmitz, Michael
BY-NC-SA 4.0
Abb. 160-MariainCosmedin_060.tifDownload
Rom, S. Maria in Cosmedin, Hauptportal, Gewände des linken Pfostens (Foto Schmitz 2016)
© Schmitz, Michael
BY-NC-SA 4.0
Abb. 161-MariainCosmedin_061.tifDownload
Rom, S. Maria in Cosmedin, Hauptportal, Relief der Unterseite des Sturzes mit der Signatur des Ioannes de Venetia, Detailaufnahmen (Fotos BHR Fontolan 2017)
BY-NC-SA 4.0
Abb. 162-MariainCosmedin_062.tifDownload
Rom, S. Maria in Cosmedin, Fragment eines Rankenreliefs der älteren liturgischen Ausstattung, vor 1100 (Foto BHR Lehmann-Brockhaus zw. 1938/44)
BY-NC-SA 4.0
Abb. 163-MariainCosmedin_064.tifDownload
Rom, S. Maria in Cosmedin, Alfanusgrab in der Vorhalle (Zeichnung nach Giovenale, La Basilica 1927)
BY-NC-SA 4.0
Abb. 164-MariainCosmedin_065.tifDownload
Rom, S. Maria in Cosmedin, Alfanusgrab, Detailaufnahme (Foto BHR Fontolan 2017)
BY-NC-SA 4.0
Abb. 165-MariainCosmedin_066.tifDownload
Rom, S. Maria in Cosmedin, Umzeichnung des Lünettenfreskos der Geburt Christi aus der Vorhalle, frühes 12. Jh. (nach Giovenale, La Basilica 1927)
BY-NC-SA 4.0
Abb. 166-MariainCosmedin_067.tifDownload
Rom, S. Maria in Cosmedin, Mittlerweile zerstörtes Fresko aus der Vorhalle mit der Darstellung des Gotteslammes und der vier Evangelisten (nach Crescimbeni, Sta. Maria in Cosmedin 1715)
BY-NC-SA 4.0
Abb. 167-MariainCosmedin_068.tifDownload
Rom, S. Maria in Cosmedin, Campanile von Südost (Foto BHR Fontolan 2017)
Bibliotheca Hertziana © freigegeben
Abb. 168-MariainCosmedin_069.tifDownload
Rom, S. Maria in Cosmedin, Campanile von Osten, 7. Obergeschoss mit verbauter Spoliensäule der karolingischen Chorschranke (Foto BHR Fontolan 2017)
BY-NC-SA 4.0
Abb. 169-MariainCosmedin_071.tifDownload
Rom, S. Maria in Cosmedin, nördlicher Obergaden und Campanile von Nordosten (Foto BHR Schwarz zw. 1936/57)
BY-NC-SA 4.0
Abb. 170-MariainCosmedin_070.tifDownload
Rom, S. Maria in Cosmedin, Campanile von Westen mit drei Detailansichten der Biforien- und Triforiengeschosse, Aquarell von Séroux d’Agincourt, um 1780–1790, BAV, Vat.lat. 9845, fol. 20r (Foto Biblioteca Apostolica Vaticana)
Abb. 173-MariainCosmedin_075.tifDownload
Rom, S. Maria in Cosmedin, Paviment der Schola Cantorum, Detail mit Restaurierungsinschrift (Foto BHR Leotta 2017)
Bibliotheca Hertziana © freigegeben
Abb. 174-MariainCosmedin_076.tifDownload
Rom, S. Maria in Cosmedin, Pavimentplan des Chores (nach Giovenale, La Basilica 1927)
BY-NC-SA 4.0
Abb. 175-MariainCosmedin_077.tifDownload
Rom, S. Maria in Cosmedin, Karolingischer Pavimentrest im nördlichen Seitenschiff neben der Epistelkanzel (Foto BHR Fontolan 2017)
Bibliotheca Hertziana © freigegeben
Abb. 176-MariainCosmedin_078.tifDownload
Rom, S. Maria in Cosmedin, Querschnitt durch die Basilika sowie verschiedene Grund- und Aufrisse, 1824 (nach Gutensohn/Knapp, Denkmale 1827)
BY-NC-SA 4.0
Abb. 177-MariainCosmedin_079.tifDownload
Rom, S. Maria in Cosmedin, Detaildes 1898 erneuerten Chorpaviments zwischen Papstthron und Kreisschlingenband mit der Signatur des Mosaizisten Eugenio Mattia (Foto BHR Fontolan 2017)
Bibliotheca Hertziana © freigegeben
Abb. 178-MariainCosmedin_080.tifDownload
Rom, S. Maria in Cosmedin, Detail des 1899 erneuerten Paviments auf der Plattform zwischen Schola Cantorum und Chor mit der Signatur des Mosaizisten Antonio Mingoli (Foto BHR Fontolan 2017)
Bibliotheca Hertziana © freigegeben
Abb. 179-MariainCosmedin_086.tifDownload
Rom, S. Maria in Cosmedin, Grundriss (nach Fusciello, S. Maria in Cosmedin 2011)
BY-NC-SA 4.0
Abb. 180-MariainCosmedin_087.tifDownload
Rom, S. Maria in Cosmedin, Pseudomittelalterliche Idealansicht des Langhauses von J.G. Gutensohn, 1824 (nach Gutensohn/Knapp, Denkmale 1827)
BY-NC-SA 4.0
Abb. 184-MariainCosmedin_092.tifDownload
Rom, S. Maria in Cosmedin, Schnitt und Aufmessung der Epistelkanzel (nach Rohault de Fleury, La messe 1883-1889)
BY-NC-SA 4.0
Abb. 187-MariainCosmedin_095.tifDownload
Rom, S. Maria in Cosmedin, Schnitt und Aufmessung von Evangelienambo und Osterleuchter (nach Rohault de Fleury, La messe 1883-1889)
BY-NC-SA 4.0
Abb. 188-MariainCosmedin_096.tifDownload
Rom, S. Maria in Cosmedin, Rückseite des Evangelienambos vom südlichen Seitenschiff (Foto BHR Fontolan 2017)
Bibliotheca Hertziana © freigegeben
Abb. 189-MariainCosmedin_097.tifDownload
Rom, S. Maria in Cosmedin, Mosaikkreuz (nach Crescimbeni, Sta. Maria in Cosmedin 1715)
BY-NC-SA 4.0
Abb. 191-MariainCosmedin_099.tifDownload
Rom, S. Maria in Cosmedin, Osterleuchter, Signatur des Paschalis (Foto BHR Fontolan 2017)
Bibliotheca Hertziana © freigegeben
Abb. 192-MariainCosmedin_100.tifDownload
Rom, S. Maria in Cosmedin, Osterleuchter, Detail (Foto BHR Fontolan 2017)
Bibliotheca Hertziana © freigegeben
Abb. 193-MariainCosmedin_101.tifDownload
Rom, S. Maria in Cosmedin, Osterleuchter, Rückseite des Löwen (Foto BHR Fontolan 2017)
Bibliotheca Hertziana © freigegeben
Abb. 194-MariainCosmedin_102.tifDownload
Rom, S. Maria in Cosmedin, Osterleuchter im Winterchor (Foto BHR Fontolan 2017)
Bibliotheca Hertziana © freigegeben
Abb. 195-MariainCosmedin_103.tifDownload
Rom, S. Maria in Cosmedin, Osterleuchter im Winterchor, Vorderansicht der Löwe-Sphinx-Gruppe (Foto BHR Fontolan 2017)
Bibliotheca Hertziana © freigegeben
Abb. 196-MariainCosmedin_104.tifDownload
Rom, S. Maria in Cosmedin, Osterleuchter im Winterchor, Seitenansicht der Löwe-Sphinx-Gruppe (Foto Claussen 1972)
© Claussen, Peter Cornelius
BY-NC-SA 4.0
Abb. 198-MariainCosmedin_110.tifDownload
Ferentino, Dom, Chorschranke, Inkrustierte Platte mit Paulus-Signatur und Stifterinschrift (Foto Claussen 1975)
© Claussen, Peter Cornelius
BY-NC-SA 4.0
Abb. 199-MariainCosmedin_111.tifDownload
Rom, Casino Pius IV. in den vatikanischen Gärten, Schrankenplatte mit der Signatur des Paulus, eingelassen im Paviment des Vestibüls (Occhipinti, Reimpiego 2006)
BY-NC-SA 4.0
Abb. 200-MariainCosmedin_112.tifDownload
Giuseppe Lucchesi, aquarelliertes Pavimentmuster aus den Vatikanischen Grotten, um 1725, München, BSB, Cod. Icon. 207, fol. 1 (Foto Digitale Sammlung BSB)
BY-NC-SA 4.0
Abb. 202-MariainCosmedin_114.tifDownload
Rom, S. Maria in Cosmedin, Altarmensa mit Weihinschrift, 1123 (Peroni/Riccioni, Reliquary Altar 2000)
BY-NC-SA 4.0
Abb. 203-MariainCosmedin_115.tifDownload
Rom, S. Maria in Cosmedin, Weihinschrift in der Apsis, 1123 (Silvagni, Epigraphica 1943)
BY-NC-SA 4.0
Abb. 205-MariainCosmedin_117.tifDownload
Rom, S. Maria in Cosmedin, Kapitelle des Altarziboriums (Fotos BHR Fontolan 2017)
Bibliotheca Hertziana © freigegeben
Abb. 206-MariainCosmedin_118.tifDownload
Rom, S. Maria in Cosmedin, Kapitelle des Altarziboriums (Fotos BHR Fontolan 2017)
Bibliotheca Hertziana © freigegeben
Abb. 207-MariainCosmedin_120.tifDownload
Rom, S. Maria in Cosmedin, Nordseite des Ziboriums mit Caetani-Wappen am Oberbau (Foto BHR Fontolan 2017)
Bibliotheca Hertziana © freigegeben
Abb. 208-MariainCosmedin_121.tifDownload
Rom, S. Maria in Cosmedin, Gewölbe des Ziboriums (Foto BHR Fontolan 2017)
Bibliotheca Hertziana © freigegeben
Abb. 209-MariainCosmedin_122.tifDownload
Rom, S. Maria in Cosmedin, Auf- und Grundriss des Ziboriums im Maßstab 1:50, Antonino Corrao (Zeichnung A. Corrao / Schmitz 2017)
BY-NC-SA 4.0
Abb. 210-MariainCosmedin_123.tifDownload
Rom, S. Maria in Cosmedin, Signatur des Deodatus am Marmorgesims über dem Verkündigungsmosaik an der Westseite des Altarziboriums (Foto BHR Fontolan 2017)
Bibliotheca Hertziana © freigegeben
Abb. 211-MariainCosmedin_124.tifDownload
Rom, S. Maria in Cosmedin, Biforienfenster der mittleren Apsis, Zeichnung (nach Giovenale, La Basilica 1927)
BY-NC-SA 4.0
Abb. 212-MariainCosmedin_125.tifDownload
Rom, S. Maria in Cosmedin, gotische Masswerkfragmente vom Biforienfenster der mittleren Apsis (Giovenale, La Basilica 1927)
BY-NC-SA 4.0
Abb. 213-MariainCosmedin_126.tifDownload
Rom, S. Maria in Cosmedin, Papstthron im Scheitel der Apsis (Foto BHR Fontolan 2017)
Bibliotheca Hertziana © freigegeben
Abb. 215-MariainCosmedin_129.jpgDownload
Rom, S. Maria in Cosmedin, Malereien im Obergaden, Medaillon im Ostteil der südlichen Mittelschiffhochwand mit der Büste des Propheten Jeremias, 9. Jh. (2° strato) (nach Giovenale, La Basilica 1927)
BY-NC-SA 4.0
Abb. 216-MariainCosmedin_130.tifDownload
Rom, S. Maria in Cosmedin, Palimpsestmalereien im Obergaden, Medaillon im Westteil der südlichen Mittelschiffhochwand mit der Büste eines Propheten, 9. Jh. (2° strato), im unteren Bereich überlappt von der jüngeren Freskoschicht aus dem frühen 12. Jh. (3° strato) (Foto Schmitz 2006)
© Schmitz, Michael
BY-NC-SA 4.0
Abb. 217-MariainCosmedin_131.tifDownload
Rom, S. Maria in Cosmedin, Malereien der Hochschiffwände, Schema des Dekorationssystems (nach Giovenale, La Basilica 1927)
BY-NC-SA 4.0
Abb. 218-MariainCosmedin_132.tifDownload
Rom, S. Maria in Cosmedin, Malereien der nördlichen Hochwand des Mittelschiffes, Fragment aus dem Ezechiel-Zyklus (Ez 12, 3-6) (3° strato) (nach Giovenale, La Basilica 1927)
BY-NC-SA 4.0
Abb. 219-MariainCosmedin_133.tifDownload
Rom, S. Maria in Cosmedin, Malereien der nördlichen Hochwand des Mittelschiffes, Fragment der Vermählung Mariens aus dem Christus-Marien-Zyklus (3° strato) (nach Giovenale, La Basilica 1927)
BY-NC-SA 4.0
Abb. 220-MariainCosmedin_134.tifDownload
Rom, S. Maria in Cosmedin, Fragmente von Palimpsestmalereien an der südlichen Hochwand des nördlichen Seitenschiffes, Umzeichnung (nach Giovenale, La Basilica 1927)
BY-NC-SA 4.0
Abb. 221-MariainCosmedin_135.tifDownload
Rom, S. Maria in Cosmedin, Rekonstruktion des Langhauses um 1123, Projektskizze für die Restaurierung der Basilika, Projekt G. Tognetti, Aquarell L. Bazzani, 1893 (nach Giovenale, La Basilica 1927)
BY-NC-SA 4.0
Abb. 222-MariainCosmedin_136_1.tifDownload
Rom, S. Maria in Cosmedin, Apsiswand zuseiten des Papstthrons, Signatur der Maler Alessandro Palombi und Cesare Caroselli, 1899 (Foto BHR Fontolan 2017)
Bibliotheca Hertziana © freigegeben
Abb. 222-MariainCosmedin_136_2.tifDownload
Rom, S. Maria in Cosmedin, Apsiswand zuseiten des Papstthrons, Signatur der Maler Alessandro Palombi und Cesare Caroselli, 1899 (Foto BHR Fontolan 2017)
Bibliotheca Hertziana © freigegeben
Abb. 223-MariainCosmedin_137.tifDownload
Anonymus nach Anton van der Wyngaerde, Blick vom Aventin auf Rom mit dem Campanile von S. Maria in Cosmedin und angrenzenden Gebäuden im Vordergrund, um 1550. Oxford, Bodleian Library, Sutherland Collection, Vol. II, fol. 328 (nach Giovenale, La Basilica 1927)
BY-NC-SA 4.0
Abb. 224-MariainCosmedin_138.tifDownload
Rom, Museo Nazionale del Palazzo di Venezia, Collezione Corvisieri, Siegel des Kanonikers und Presbyters Paulus, um 1300 (nach Benocci 1998)
BY-NC-SA 4.0
Abb. 225-MariainCosmedin_139.tifDownload
Rom, Museo Nazionale del Palazzo di Venezia, Collezione Corvisieri, Siegel des Kanonikerstifts von S. Maria in Cosmedin, um 1300 (nach Benocci 1998)
BY-NC-SA 4.0
Taf. 10-MariainCosmedin_082.jpgDownload
Giuseppe Lucchesi, aquarellierte Pavimentmuster aus S. Maria in Cosmedin, um 1725. München, BSB, Cod. Icon. 207, fol. 278 (Foto Digitale Sammlung BSB)
BY-NC-SA 4.0
Taf. 11-MariainCosmedin_083.jpgDownload
Giuseppe Lucchesi, aquarellierte Pavimentmuster aus S. Maria in Cosmedin, um 1725. München, BSB, Cod. Icon. 207, fol. 280, (Foto Digitale Sammlung BSB)
BY-NC-SA 4.0
Taf. 12-MariainCosmedin_084.jpgDownload
Giuseppe Lucchesi, aquarellierte Pavimentmuster aus S. Maria in Cosmedin, um 1725. München, BSB, Cod. Icon. 207, fol. 281 (Foto Digitale Sammlung BSB)
BY-NC-SA 4.0
Taf. 13-MariainCosmedin_085.jpgDownload
Rom, S. Maria in Cosmedin, Detail eines Pavimentmusters im Mittelschiff (Foto BHR Fontolan 2017)
Bibliotheca Hertziana © freigegeben
Taf. 14-MariainCosmedin_093.tifDownload
Rom, S. Maria in Cosmedin, Evangelienambo (Foto BHR Leotta 2017)
Bibliotheca Hertziana © freigegeben
Taf. 15-MariainCosmedin_106.jpgDownload
Rom, S. Maria in Cosmedin, Inkrustierte Platten der Chorschranke (Fotos BHR Fontolan 2017)
Bibliotheca Hertziana © freigegeben
Taf. 16-MariainCosmedin_108.jpgDownload
Rom, S. Maria in Cosmedin, Inkrustierte Platten der Chorschranke (Fotos BHR Fontolan 2017)
Bibliotheca Hertziana © freigegeben
Taf. 17-MariainCosmedin_107.jpgDownload
Rom, S. Maria in Cosmedin, Inkrustierte Platten der Chorschranke (Fotos BHR Fontolan 2017)
Bibliotheca Hertziana © freigegeben
Taf. 18-MariainCosmedin_109.jpgDownload
Rom, S. Maria in Cosmedin, Inkrustierte Platten der Chorschranke (Fotos BHR Fontolan 2017)
Bibliotheca Hertziana © freigegeben
Taf. 19-MariainCosmedin_127.jpgDownload
Rom, S. Maria in Cosmedin, Papstthron im Scheitel der Apsis (Foto BHR Fontolan 2017)
Bibliotheca Hertziana © freigegeben
Taf. 2-MariainCosmedin_004.tifDownload
Rom, S. Maria in Cosmedin, Innenansicht nach Westen zur Eingangswand (Foto BHR Leotta 2017)
O.C.S.A. © freigegeben
Taf. 20-MariainCosmedin_119.jpgDownload
Rom, S. Maria in Cosmedin, Verkündigungsmosaik an der Westseite des Altarziboriums (Foto BHR Fontolan 2017)
Bibliotheca Hertziana © freigegeben
Taf. 3-MariainCosmedin_026.jpgDownload
Rom, S. Maria in Cosmedin, Nordseite des Turmerdgeschosses vom Mittelschiff (Foto BHR Fontolan 2017)
Bibliotheca Hertziana © freigegeben
Taf. 4-MariainCosmedin_021.tifDownload
Rom, S. Maria in Cosmedin, karolingisches Paviment um den Altar (Foto BHR Fontolan 2017)
Bibliotheca Hertziana © fehlt
Taf. 5-MariainCosmedin_029.jpgDownload
Rom, S. Maria in Cosmedin, Innenansicht vom nördlichen Seitenschiff zur Eingangswand (Foto BHR Fontolan 2017)
Bibliotheca Hertziana © freigegeben
Taf. 6-MariainCosmedin_030.jpgDownload
Rom, S. Maria in Cosmedin, Spoliensäulen der Nordarkatur (Foto BHR Fontolan 2017)
Bibliotheca Hertziana © freigegeben
Taf. 7-MariainCosmedin_063.jpgDownload
Rom, S. Maria in Cosmedin, Alfanusgrab in der Vorhalle (Foto BHR Fontolan 2017)
Bibliotheca Hertziana © freigegeben
Taf. 8-MariainCosmedin_073.tifDownload
Rom, S. Maria in Cosmedin, Quincunx und Porphyrrota vom Paviment des Mittelschiffes (Foto BHR Leotta 2017)
BY-NC-SA 4.0
Taf. 9-MariainCosmedin_081.jpgDownload
Giuseppe Lucchesi, aquarellierte Pavimentmuster aus S. Maria in Cosmedin, um 1725, München, BSB, Cod. Icon. 207, fol. 276 (Foto Digitale Sammlung BSB)
BY-NC-SA 4.0
Number in map
62
Church name
S. Maria in Cosmedin
Existing
Coordinates
41.88827, 12.48142
Address
Piazza della Bocca della Verità 18
Rione
Ripa (XII)
Nolli's map #
1086
Chronology
8th century, 9th century, 12th century, 13th century
Keywords
crypt, portico, porch, bell tower, cavetto, diacony, Pope Hadrian I, Pope Nicholas I, Pope Callistus II, Francesco Caetani, Giuseppe Sardi, Giovanni Battista Giovenale, restorations, spolia, early medieval plutei, Byzantine and Carolingian marble fragments, inscriptions, schola cantorum, gospel ambo, epistle pulpit, workshop of Paulus, opus sectile pavement, rota, Cosmatesque plutei, papal throne, paschal candlestick, Paschalis, ciborium, Deodatus, wall paintings, tomb of Alfanus, Castel Sant’Elia, “Bocca della Verità”, Mouth of Truth, bearded masks
Research status
Completed
Published in

Corpus Cosmatorum II, volume 4

2D