Data not yet available.

Bd_3_0.tifDownload
Rom, S. Lorenzo fuori le mura, Südkolonnade, Kapitell 4 mit Frosch und Echse (Foto DAI Rom)
Unknown License - Ask Copyright Holder for Permission
Bd_3_254.jpgDownload
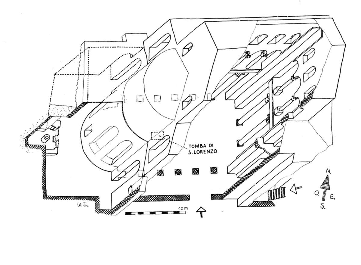
Rom, S. Lorenzo fuori le mura und Basilica maior, Grundriss (nach Krautheimer, Corpus II, Taf. II)
© Krautheimer, Richard
Unknown License - Ask Copyright Holder for Permission
Bd_3_255.jpgDownload
Rom, S. Lorenzo fuori le mura, Pelagius-Basilika, Blick ins Presbyterium nach Osten (Foto KHI Zürich)
Unknown License - Ask Copyright Holder for Permission
Bd_3_256.jpgDownload
Rom, S. Lorenzo fuori le mura, Rekonstruktion der Pelagius-Basilika um 600 (nach Krautheimer, Corpus II, fig. 122)
© Krautheimer, Richard
Unknown License - Ask Copyright Holder for Permission
Bd_3_257.jpgDownload
Rom, S. Lorenzo fuori le mura, Pelagius-Basilika, Presbyterium und Mosaik nach Westen, vor 1943 (Sopr. Mon. Laz.)
Unknown License - Ask Copyright Holder for Permission
Bd_3_258.jpgDownload
Rom, S. Lorenzo fuori le mura, Pelagius-Basilika, Apsisbogenmosaik (Foto KHI Zürich)
Unknown License - Ask Copyright Holder for Permission
Bd_3_260.jpgDownload
Rom, S. Lorenzo fuori le mura, Pelagius-Basilika, Retrosanctos um 600 (nach Krautheimer, Corpus II, fig. 72)
© Krautheimer, Richard
Unknown License - Ask Copyright Holder for Permission
Bd_3_261.jpgDownload
Rom, S. Lorenzo fuori le mura, Pelagius-Basilika, Retrosanctos folgende Phasen um 800–1150 (nach Krautheimer, Corpus II, fig. 73)
© Krautheimer, Richard
Unknown License - Ask Copyright Holder for Permission
Bd_3_264.jpgDownload
Rom, S. Lorenzo fuori le mura, Pelagius-Basilika, Stucktransenne mit Inschrift aus der Zeit des Pontifikats Johannes XIX. (1024–1032), ehemals in der inneren Westempore, heute im Kreuzgang (Foto Senekovic 2004)
© Senekovic, Darko
BY-NC-SA 4.0
Bd_3_266.jpgDownload
Rom, S. Lorenzo fuori le mura, Pelagius-Basilika, Krypta, Grundriss (Rekonstruktionsskizze Franziska Bächer, Zürich 2005)
© Bächer, Franziska
BY-NC-SA 4.0
Bd_3_267.jpgDownload
Rom, S. Lorenzo fuori le mura, Pelagius-Basilika, Krypta, Längsschnitt (Rekonstruktionsskizze Franziska Bächer, Zürich 2005)
© Bächer, Franziska
BY-NC-SA 4.0
Bd_3_268.jpgDownload
Rom, S. Lorenzo fuori le mura, Pelagius-Basilika, Gewölbeansatz der Krypta (oben), Skizze aus dem Grabungstagebuch von Wolfgang Frankl, PIAC (Foto Mondini 2004)
© Mondini, Daniela
BY-NC-SA 4.0
Bd_3_269.jpgDownload
Rom, S. Lorenzo fuori le mura, Pelagius-Basilika, Retrochor, Grundriss, mehrere Phasen (nach Krautheimer, Corpus II, fig. 85)
© Krautheimer, Richard
Unknown License - Ask Copyright Holder for Permission
Bd_3_270.jpgDownload
Rom, S. Lorenzo fuori le mura, Pelagius-Basilika, Retrochor, Grundriss 1. Phase (Rekonstruktionsskizze Franziska Bächer, Zürich 2005)
© Bächer, Franziska
BY-NC-SA 4.0
Bd_3_271.jpgDownload
Rom, S. Lorenzo fuori le mura, Pelagius-Basilika, Retrochor, Aufriss 1. Phase (Rekonstruktionsskizze Franziska Bächer, Zürich 2005)
© Bächer, Franziska
BY-NC-SA 4.0
Bd_3_272.jpgDownload
Rom, S. Lorenzo fuori le mura, Pelagius-Basilika, Retrochor, Längsschnitt 1. Phase (Rekonstruktionsskizze Franziska Bächer, Zürich 2005)
© Bächer, Franziska
BY-NC-SA 4.0
Bd_3_273.jpgDownload
Rom, S. Lorenzo fuori le mura, Pelagius-Basilika, Retrochor, Grundriss 2. Phase (Rekonstruktionsskizze Franziska Bächer, Zürich 2005)
© Bächer, Franziska
BY-NC-SA 4.0
Bd_3_274.jpgDownload
Rom, S. Lorenzo fuori le mura, Pelagius-Basilika, südlicher Triumphbogenpfeiler, bzw. Anschluss der Südkolonnade an den Triumphbogen (Foto Mondini 2005)
© Mondini, Daniela
BY-NC-SA 4.0
Bd_3_275.jpgDownload
Rom, S. Lorenzo fuori le mura, Pelagius-Basilika, Retrochor, Tumulus (Foto PCAS, Corpus II, fig. 87)
© Krautheimer, Richard
Unknown License - Ask Copyright Holder for Permission
Bd_3_276.jpgDownload
Rom, S. Lorenzo fuori le mura, Rekonstruktion der letzten Phase der Pelagius-Basilika, Ende 12. Jahrhundert (nach Krautheimer, Corpus II, fig. 123)
© Krautheimer, Richard
Unknown License - Ask Copyright Holder for Permission
Bd_3_277.jpgDownload
Rom, S. Lorenzo fuori le mura, Honorius-Basilika, Reste der Fundamentierung des Vorchors des 13. Jahrhunderts, Grabungsskizze von Wolfgang Frankl, PIAC (Foto Mondini 2004)
© Mondini, Daniela
BY-NC-SA 4.0
Bd_3_278.jpgDownload
Rom, S. Lorenzo fuori le mura, Honorius-Basilika, als Fenstertransenne wieder verwendete Inschriftplatte der unter Coelestin III. und Innozenz III. errichteten Befestigungsanlage (Foto Senekovic 2004)
© Senekovic, Darko
BY-NC-SA 4.0
Bd_3_279.jpgDownload
Rom, S. Lorenzo fuori le mura, „Torre dei Cappuccini“ (Foto Mondini 2007)
© Mondini, Daniela
BY-NC-SA 4.0
Bd_3_280.jpgDownload
Rom, S. Lorenzo fuori le mura, Honorius-Basilika, Vedute von Lafréri, 1575 (Corpus II, fig. 7)
© Krautheimer, Richard
Unknown License - Ask Copyright Holder for Permission
Bd_3_281.jpgDownload
Rom, S. Lorenzo fuori le mura, Honorius-Basilika, Vedute von Heemskerck, um 1535 (Hülsen/Egger)
Unknown License - Ask Copyright Holder for Permission
Bd_3_282.jpgDownload
Rom, S. Lorenzo fuori le mura und mittelalterliche Befestigungsanlage, Romplan von Bufalini, 1551 (nach Frutaz)
© Frutaz, Aimé-Pierre
Unknown License - Ask Copyright Holder for Permission
Bd_3_283.jpgDownload
Rom, S. Lorenzo fuori le mura, Grundriss- und Schnittzeichnungen, sowie Details der Bauskulptur um 1790 (nach Séroux d’Agincourt IV, Architecture, Taf. XXVIII)
© Séroux d’Agincourt, Jean Baptiste
Unknown License - Ask Copyright Holder for Permission
Bd_3_284.jpgDownload
Rom, S. Lorenzo fuori le mura, Honorius-Basilika, Innenansicht in das Langhaus (Foto Mondini 2006)
© Mondini, Daniela
BY-NC-SA 4.0
Bd_3_285.jpgDownload
Rom, S. Lorenzo fuori le mura, Honorius-Basilika, hypothetischer Ablauf des Umbaus (Vorstellungshilfe Franziska Bächer/Mondini 2007)
© Mondini, Daniela
BY-NC-SA 4.0
Bd_3_286.jpgDownload
Rom, S. Lorenzo fuori le mura, Weiheinschrift von 1254 in der südlichen Presbyteriumsbank (Foto Senekovic 2008)
© Senekovic, Darko
BY-NC-SA 4.0
Bd_3_287.jpgDownload
Rom, S. Lorenzo fuori le mura, Pavimentplan von Johann Michael Knapp, 1823 (Bunsen/Gutensohn/Knapp, Basiliken, 1842, Taf. XII)
Unknown License - Ask Copyright Holder for Permission
Bd_3_288.jpgDownload
Rom, S. Lorenzo fuori le mura, Reliquieninventar am nordöstlichen Pfeiler des Pelagius-Bau, ursprünglich im östlichen Seitenschiff (Foto Senekovic 2004)
© Senekovic, Darko
BY-NC-SA 4.0
Bd_3_289.tifDownload
Rom, S. Lorenzo fuori le mura, Vorhallenmalereien, Aquarellskizze von Antonio Eclissi, Windsor, Royal Library n. 8952 (Osborne/Claridge 1996, S. 124, Nr. 30)
Unknown License - Ask Copyright Holder for Permission
Bd_3_290.jpgDownload
Rom, S. Lorenzo fuori le mura, Presbyterium vor 1618/1625 (Stich Maggi)
© Maggi, Giovanni
Unknown License - Ask Copyright Holder for Permission
Bd_3_291.jpgDownload
Rom, S. Lorenzo fuori le mura, südlicher Obergaden (Foto Sansaini)
© Sansaini, Renato
Unknown License - Ask Copyright Holder for Permission
Bd_3_292.jpgDownload
Rom, S. Lorenzo fuori le mura, südliche Seitenschiffwand (Foto John, BH)
Unknown License - Ask Copyright Holder for Permission
Bd_3_293.jpgDownload
Rom, S. Lorenzo fuori le mura, Aufriss der südlichen Seitenschiffwand (nach Krautheimer, Corpus, II, Taf. V)
© Krautheimer, Richard
Unknown License - Ask Copyright Holder for Permission
Bd_3_294.jpgDownload
Rom, S. Lorenzo fuori le mura, Nordseite (Foto Mondini 2004)
© Mondini, Daniela
BY-NC-SA 4.0
Bd_3_295.jpgDownload
Rom, S. Lorenzo fuori le mura, Nordseite, Mauerabschnitt der „intermediate Bays“ (Foto Mondini 2004)
© Mondini, Daniela
BY-NC-SA 4.0
Bd_3_296.jpgDownload
Rom, S. Lorenzo fuori le mura, Nordseite, Anschluss der Vorhalle (Foto Mondini 2002)
© Mondini, Daniela
BY-NC-SA 4.0
Bd_3_297.jpgDownload
Rom, S. Lorenzo fuori le mura, Westfassade (Foto Mondini 2007)
© Mondini, Daniela
BY-NC-SA 4.0
Bd_3_298.jpgDownload
Rom, S. Lorenzo fuori le mura, Westfassade (vor 1865, Foto ICCD)
Unknown License - Ask Copyright Holder for Permission
Bd_3_299.jpgDownload
Rom, S. Lorenzo fuori le mura, Vorhalle, Postament der 1. Säule von links (Foto Mondini 2004)
© Mondini, Daniela
BY-NC-SA 4.0
Bd_3_300.jpgDownload
Rom, S. Lorenzo fuori le mura, Vorhalle, 6. Kapitell von links (Foto Mondini 2004)
© Mondini, Daniela
BY-NC-SA 4.0
Bd_3_301.jpgDownload
Rom, S. Lorenzo fuori le mura, Vorhalle, 4. Kapitell von links (Foto Mondini 2004)
© Mondini, Daniela
BY-NC-SA 4.0
Bd_3_303.jpgDownload
Rom, S. Lorenzo fuori le mura, Vorhalle, rechtes Mosaikfeld, heutiger Zustand (Foto Senekovic 2004)
© Senekovic, Darko
BY-NC-SA 4.0
Bd_3_304.jpgDownload
Rom, S. Lorenzo fuori le mura, Vorhalle, Löwenköpfe im Traufgesims (ICCD)
Unknown License - Ask Copyright Holder for Permission
Bd_3_305.jpgDownload
Rom, S. Lorenzo fuori le mura, Vorhalle, 6. Löwenkopf von links im Traufgesims (Foto Mondini 2004)
© Mondini, Daniela
BY-NC-SA 4.0
Bd_3_306.jpgDownload
Rom, S. Lorenzo fuori le mura, Vorhalle, 10. Löwenkopf von links im Traufgesims (Foto Mondini 2004)
© Mondini, Daniela
BY-NC-SA 4.0
Bd_3_307.jpgDownload
Rom, S. Lorenzo fuori le mura, Vorhalle, Löwenkopf am nördlichen Ende des Traufgesimses (Foto Senekovic 2004)
© Senekovic, Darko
BY-NC-SA 4.0
Bd_3_308.jpgDownload
Rom, S. Paolo fuori le mura, Kreuzgang, Südfl ügel (Foto Mondini 2005)
© Mondini, Daniela
BY-NC-SA 4.0
Bd_3_309.jpgDownload
Rom, S. Lorenzo fuori le mura, linkes Seitenportal (Foto Mondini 2004)
© Mondini, Daniela
BY-NC-SA 4.0
Bd_3_310.jpgDownload
Rom, S. Lorenzo fuori le mura, Mittelportal, (Foto Senekovic 2008)
© Senekovic, Darko
BY-NC-SA 4.0
Bd_3_311.jpgDownload
Rom, S. Lorenzo fuori le mura, Mittelportal, Adler am Türsturz (Foto Senekovic 2002)
© Senekovic, Darko
BY-NC-SA 4.0
Bd_3_312.jpgDownload
Rom, S. Lorenzo fuori le mura, Mittelportal, linker Löwe (Foto Mondini 1990)
© Mondini, Daniela
BY-NC-SA 4.0
Bd_3_313.jpgDownload
Rom, S. Lorenzo fuori le mura, Mittelportal, linker Löwe (Foto Mondini 1990)
© Mondini, Daniela
BY-NC-SA 4.0
Bd_3_314.jpgDownload
Rom, S. Lorenzo fuori le mura, Mittelportal, rechter Löwe (Foto Mondini 1990)
© Mondini, Daniela
BY-NC-SA 4.0
Bd_3_315.jpgDownload
Rom, S. Lorenzo fuori le mura, Mittelportal, rechter Löwe steckt in der Wand (Foto Mondini 1990)
© Mondini, Daniela
BY-NC-SA 4.0
Bd_3_317.jpgDownload
Rom, S. Lorenzo fuori le mura, südliche Langhauskolonnade in Höhe des Ambos, Postament (Foto Mondini 2005)
© Mondini, Daniela
BY-NC-SA 4.0
Bd_3_318.jpgDownload
Rom, S. Lorenzo fuori le mura, Langhauskapitell mit fünf Eiern (Foto Voss)
© Voss, Irmgard Maria
Unknown License - Ask Copyright Holder for Permission
Bd_3_319.jpgDownload
Rom, S. Lorenzo fuori le mura, Architekturdetails (Zeichnungssammlung von Séroux d’Agincourt, vor 1790, BAV, Vat. lat. 13479, fol. 256r)
Unknown
Bd_3_320.jpgDownload
Rom, S. Lorenzo fuori le mura, Südkolonnade, Kapitell 4 mit Frosch und Echse (Foto DAI Rom)
Unknown License - Ask Copyright Holder for Permission
Bd_3_321.jpgDownload
Winckelmann, Frontispiz der „Anmerkungen über die Baukunst der Alten“ mit dem Frosch-Echse-Kapitell aus Rom, S. Lorenzo (Foto Zentralbibliothek Zürich)
Unknown License - Ask Copyright Holder for Permission
Bd_3_322.jpgDownload
Rom, S. Lorenzo fuori le mura, Südkolonnade, Kapitell 5 mit Maske (Foto Voss)
© Voss, Irmgard Maria
Unknown License - Ask Copyright Holder for Permission
Bd_3_323.jpgDownload
Rom, S. Lorenzo fuori le mura, Gebälk und Obergaden der nördlichen Langhauskolonnade (Foto Mondini 2004)
© Mondini, Daniela
BY-NC-SA 4.0
Bd_3_324.jpgDownload
Rom, S. Lorenzo fuori le mura, Gebälk, Skizze mit eingetragenen Massen von Wolfgang Frankl, PIAC (Foto Mondini 2004)
© Mondini, Daniela
BY-NC-SA 4.0
Bd_3_325.jpgDownload
Rom, S. Lorenzo fuori le mura, südliches Seitenschiff Gebälk Rückseite mit Entlastungsbögen (Foto Senekovic 2004)
© Senekovic, Darko
BY-NC-SA 4.0
Bd_3_326.jpgDownload
Rom, S. Lorenzo fuori le mura, Langhaus um 1850 (nach Letarouilly)
© Létarouilly, Paul Marie
Unknown License - Ask Copyright Holder for Permission
Bd_3_327.jpgDownload
Rom, S. Lorenzo fuori le mura, Anschluss der Nordkolonnade an den Triumphbogen (Foto Mondini 2005)
© Mondini, Daniela
BY-NC-SA 4.0
Bd_3_328.jpgDownload
Rom, S. Lorenzo fuori le mura, Grundriss aufgenommen von Letarouilly (Letarouilly, III, 1853, Taf. 269)
© Létarouilly, Paul Marie
Unknown License - Ask Copyright Holder for Permission
Bd_3_329.jpgDownload
Rom, S. Lorenzo fuori le mura, Pavimentplan (Aufnahme von Stefanie Oelke, Köln, 1990/93)
© Oelke, Stefanie
Unknown License - Ask Copyright Holder for Permission
Bd_3_330.jpgDownload
Rom, S. Lorenzo fuori le mura, Langhauspaviment im Eingangsbereich (Foto Mondini 2005)
© Mondini, Daniela
BY-NC-SA 4.0
Bd_3_333.jpgDownload
Rom, S. Lorenzo fuori le mura und S. Maria Maggiore, ehem. Reitermosaiken im Paviment (Ciampini, Vet. Mon. 1690/99)
Unknown License - Ask Copyright Holder for Permission
Bd_3_334.jpgDownload
Rom, S. Lorenzo fuori le mura, Langhauspaviment, ehemalige Stufe des Vorchors (Foto Mondini 1990)
© Mondini, Daniela
BY-NC-SA 4.0
Bd_3_335.jpgDownload
Rom, S. Lorenzo fuori le mura, Langhaus im Bereich des Vorchors (Foto ICCD vor 1943)
Unknown License - Ask Copyright Holder for Permission
Bd_3_336.jpgDownload
Rom, S. Lorenzo fuori le mura, Vorchor, Maßwerkscheibe aus Marmor als „Bodenfenestella“ (Foto Senekovic 2004)
© Senekovic, Darko
BY-NC-SA 4.0
Bd_3_337.jpgDownload
Rom, S. Lorenzo fuori le mura, Evangelienambo (Foto Luce, vor 1943)
Unknown License - Ask Copyright Holder for Permission
Bd_3_338.jpgDownload
Rom, S. Lorenzo fuori le mura, Evangelienambo, Zeichnung aus dem Nachlass von Séroux d’Agincourt (BAV, Vat. lat. 13479, fol. 251r)
Unknown
Bd_3_339.jpgDownload
Rom, S. Lorenzo fuori le mura, Evangelien- und Epistelkanzel; darunter ehemalige Kanzeln von S. Pancrazio fuori le mura, spiegelverkehrt (Ciampini, Vet. Mon. 1690, I, Taf. XIII)
Unknown License - Ask Copyright Holder for Permission
Bd_3_340.jpgDownload
Rom, S. Lorenzo fuori le mura, Evangelienambo, Kanzelkorb (Foto Mondini 1990)
© Mondini, Daniela
BY-NC-SA 4.0
Bd_3_341.jpgDownload
Rom, S. Lorenzo fuori le mura, Evangelienambo, Adler mit Beute (Foto Mondini 2004)
© Mondini, Daniela
BY-NC-SA 4.0
Bd_3_342.jpgDownload
Rom, S. Lorenzo fuori le mura, Evangelienambo, Rückseite (Foto Mondini 1990)
© Mondini, Daniela
BY-NC-SA 4.0
Bd_3_343.jpgDownload
Rom, S. Lorenzo fuori le mura, Evangelienambo, westlicher Knauf (Foto Mondini 2004)
© Mondini, Daniela
BY-NC-SA 4.0
Bd_3_344.jpgDownload
Rom, S. Lorenzo fuori le mura, Evangelienambo, östlicher Knauf (Foto Mondini 2004)
© Mondini, Daniela
BY-NC-SA 4.0
Bd_3_345.jpgDownload
Rom, S. Lorenzo fuori le mura, Löwenpaar am Fuß des Osterleuchters (Foto Mondini 1990)
© Mondini, Daniela
BY-NC-SA 4.0
Bd_3_346.jpgDownload
Rom, S. Lorenzo fuori le mura, Kapitell des Osterleuchters (Foto Mondini 1990)
© Mondini, Daniela
BY-NC-SA 4.0
Bd_3_347.jpgDownload
Rom, S. Lorenzo fuori le mura, Epistelkanzel (Foto Senekovic 2004)
© Senekovic, Darko
BY-NC-SA 4.0
Bd_3_348.jpgDownload
Rom, S. Lorenzo fuori le mura, Epistelkanzel (Rohault de Fleury, La Messe, III, 1883)
© Fleury, Rohault de
Unknown License - Ask Copyright Holder for Permission
Bd_3_349.jpgDownload
Rom, S. Lorenzo fuori le mura, Lesepult der Epistelkanzel, heute im Kreuzgang (Foto Senekovic 2005)
© Senekovic, Darko
BY-NC-SA 4.0
Bd_3_350.jpgDownload
Rom, S. Lorenzo fuori le mura, in der Epistelkanzel verbaute griechische Inschrift (Foto Claussen 2004)
© Claussen, Peter Cornelius
BY-NC-SA 4.0
Bd_3_351.jpgDownload
Rom, S. Pancrazio, Evangelienambo, Zeichnung von G. de Sanctis (BNCR, Fondo Vittorio Emanuele 552, Taf. 9)
Unknown License - Ask Copyright Holder for Permission
Bd_3_352.jpgDownload
Rom, S. Pancrazio, Epistelkanzel Zeichnung von G. de Sanctis (BNCR, Fondo Vittorio Emanuele 552, Taf. 11)
Unknown License - Ask Copyright Holder for Permission
Bd_3_353.jpgDownload
Rom, S. Lorenzo fuori le mura, Rekonstruktion der Schola Cantorum mit Anordnung der Spolien (nach Leoncini)
© Leoncini, Luca
Unknown License - Ask Copyright Holder for Permission
Bd_3_354.jpgDownload
Rom, S. Lorenzo fuori le mura, Rekonstruktion der Schola Cantorum, Korrektur von Leoncini (Mondini 1995)
© Mondini, Daniela
BY-NC-SA 4.0
Bd_3_357.jpgDownload
Rom, S. Lorenzo fuori le mura, Ziborium (Foto Senekovic 2004)
© Senekovic, Darko
BY-NC-SA 4.0
Bd_3_358.jpgDownload
Rom, S. Lorenzo fuori le mura, Ziborium, unterstes Register, Stifterinschrift des Abtes Hugo (Foto Senekovic 2005)
© Senekovic, Darko
BY-NC-SA 4.0
Bd_3_359.jpgDownload
Rom, S. Lorenzo fuori le mura, Ziborium und Kathedra, Zeichnung aus dem Nachlass von Séroux d’Agincourt, um 1790, BAV, Vat. lat. 13479, fol. 252r
Unknown
Bd_3_360.jpgDownload
Rom, S. Lorenzo fuori le mura, Altar (Foto Senekovic 2005)
© Senekovic, Darko
BY-NC-SA 4.0
Bd_3_361.jpgDownload
Rom, S. Lorenzo fuori le mura, Altar, Eckkapitell (Foto Mondini 1990)
© Mondini, Daniela
BY-NC-SA 4.0
Bd_3_362.jpgDownload
Rom, S. Lorenzo fuori le mura, Altarpodest, Nordseite (Foto Senekovic 2005)
© Senekovic, Darko
BY-NC-SA 4.0
Bd_3_363.jpgDownload
Rom, S. Lorenzo fuori le mura, Altarpodest, Südseite (Foto Senekovic 2005)
© Senekovic, Darko
BY-NC-SA 4.0
Bd_3_365.jpgDownload
Rom, S. Lorenzo fuori le mura, Presbyterium, Pavimentfenestella (Foto Senekovic 2004)
© Senekovic, Darko
BY-NC-SA 4.0
Bd_3_366.jpgDownload
Rom, S. Lorenzo fuori le mura, Presbyterium, Pavimentbahn zwischen Altar und Kathedra (Foto Senekovic 2004)
© Senekovic, Darko
BY-NC-SA 4.0
Bd_3_367.jpgDownload
Rom, S. Lorenzo fuori le mura, Presbyterium, Pavimentbahn zwischen Altar und Kathedra (Foto Senekovic 2004)
© Senekovic, Darko
BY-NC-SA 4.0
Bd_3_368.jpgDownload
Rom, S. Lorenzo fuori le mura, Presbyterium, Kathedra und Schranken (Foto ICCD 1906/07)
Unknown License - Ask Copyright Holder for Permission
Bd_3_369.jpgDownload
Rom, S. Lorenzo fuori le mura, Kathedra (Foto Mondini 1990)
© Mondini, Daniela
BY-NC-SA 4.0
Bd_3_370.jpgDownload
Rom, S. Lorenzo fuori le mura, nördliche Schranke, äußeres Kapitell (Foto Senekovic 2004)
© Senekovic, Darko
BY-NC-SA 4.0
Bd_3_371.tifDownload
Rom, S. Lorenzo fuori le mura, südliche Schranke, Sima mit Masken am Gebälk am Anschluss zur Kathedra (Foto Mondini 1990)
© Mondini, Daniela
BY-NC-SA 4.0
Bd_3_372.jpgDownload
Rom, S. Lorenzo fuori le mura, südliche Schranke, Sima mit Trifrons (Foto Senekovic 2004)
© Senekovic, Darko
BY-NC-SA 4.0
Bd_3_373.jpgDownload
Anagni, Dom, Kathedra, um 1260 (Foto Claussen)
© Claussen, Peter Cornelius
BY-NC-SA 4.0
Bd_3_374.jpgDownload
Rom, S. Lorenzo fuori le mura, südliche Schranke, Gebälk am Anschluss zur Kathedra (Foto Mondini 1990)
© Mondini, Daniela
BY-NC-SA 4.0
Bd_3_375.jpgDownload
Rom, S. Lorenzo fuori le mura, Presbyterium, ägyptisierender Löwe am Abschluss der nördlichen Priesterbank (Foto Mondini 1990)
© Mondini, Daniela
BY-NC-SA 4.0
Bd_3_376.jpgDownload
Rom, S. Lorenzo fuori le mura, Presbyterium, Löwe am Abschluss der südlichen Priesterbank (Foto Senekovic 2004)
© Senekovic, Darko
BY-NC-SA 4.0
Bd_3_377.jpgDownload
Rom, S. Lorenzo fuori le mura, Chorumgang im aufgeschütteten südlichen Seitenschiff; Zeichnung von Christoffer Wilhelm Eckersberg, 1815 (Foto Statens Museum for Kunst Kopenhagen)
Unknown License - Ask Copyright Holder for Permission
Bd_3_378.jpgDownload
Rom, S. Lorenzo fuori le mura, Krypta, Eingangsbereich (Foto Mondini 2005)
© Mondini, Daniela
BY-NC-SA 4.0
Bd_3_379.jpgDownload
Rom, S. Lorenzo fuori le mura, Krypta, Grundriss und Aufriss der Süd- und Ostwand, Rekonstruktionskizze (Zeichnung Daniela Mondini / Isabel Haupt 1998)
© Mondini, Daniela
BY-NC-SA 4.0
Bd_3_380.jpgDownload
Rom, S. Lorenzo fuori le mura, Krypta, Pavimentfragment vor der modernen Ostwand (Foto Mondini 1990)
© Mondini, Daniela
BY-NC-SA 4.0
Bd_3_381.jpgDownload
Rom, S. Lorenzo fuori le mura, Krypta, Decke mit Oculi, von der modernen Ostwand durchschnitten (Foto Mondini 2005)
© Mondini, Daniela
BY-NC-SA 4.0
Bd_3_382.jpgDownload
Rom, S. Lorenzo fuori le mura, Kreuzgang, zum ehemaligen Ostabschluss der Krypta gehörende Säulen (Foto Mondini 1990)
© Mondini, Daniela
BY-NC-SA 4.0
Bd_3_384.jpgDownload
Rom, S. Lorenzo fuori le mura, Krypta, mittelalterliche ionische Kapitelle und Gebälksystem (Foto Mondini 1990)
© Mondini, Daniela
BY-NC-SA 4.0
Bd_3_385.jpgDownload
Rom, S. Lorenzo fuori le mura, Krypta, nördliche Säulenstellung nach Westen (Foto Mondini 1990)
© Mondini, Daniela
BY-NC-SA 4.0
Bd_3_386.jpgDownload
Rom, S. Lorenzo fuori le mura, Krypta, Kämpferkapitell mit Bemalungsspuren (Foto Mondini 1990)
© Mondini, Daniela
BY-NC-SA 4.0
Bd_3_387.jpgDownload
Rom, S. Lorenzo fuori le mura, Krypta, Eingangsbereich, inkrustierte frühchristliche Inschriftplatte in der Decke (Foto Mondini 2005)
© Mondini, Daniela
BY-NC-SA 4.0
Bd_3_388.jpgDownload
Rom, S. Lorenzo fuori le mura, Cappella di S. Tarcisio, aus Fragmenten der mittelalterlichen Wanddekoration der Krypta zusammengesetzter Altar von 1865 (Foto Senekovic 2004)
© Senekovic, Darko
BY-NC-SA 4.0
Bd_3_389.jpgDownload
Rom, S. Lorenzo fuori le mura, Lokalisierung der am Tarcisio-Altar eingesetzten Fragmente der mittelalterlichen Wanddekoration der Krypta
© Senekovic, Darko
BY-NC-SA 4.1
Bd_3_390.jpgDownload
Rom, S. Lorenzo fuori le mura, Kreuzgang, weitere Reste der Wanddekoration der Krypta (?) (Foto Senekovic 2004)
© Senekovic, Darko
BY-NC-SA 4.0
Bd_3_391.jpgDownload
Rom, S. Lorenzo fuori le mura, Pelagius-Basilika, Nordwand: Platte des hl. Justinus, die ehemals in der Südwand der Krypta angebracht war (Foto Senekovic 2004)
© Senekovic, Darko
BY-NC-SA 4.0
Bd_3_392.jpgDownload
Rom, S. Lorenzo fuori le mura, Krypta, Pavimentabschnitt im Eingangsbereich (Foto Mondini 2005)
© Mondini, Daniela
BY-NC-SA 4.0
Bd_3_393.jpgDownload
Rom, S. Lorenzo fuori le mura, Krypta, Paviment aus Giallo antico (Foto Mondini 2005)
© Mondini, Daniela
BY-NC-SA 4.0
Bd_3_394.jpgDownload
Rom, S. Lorenzo fuori le mura, Krypta, Confessio östlich des Grabmonuments (Foto Mondini 2005)
© Mondini, Daniela
BY-NC-SA 4.0
Bd_3_395.jpgDownload
Rom, S. Lorenzo fuori le mura, Krypta, Confessio östlich des Grabmonuments Ansicht und Deckplatte (Zeichnung Mondini 1990)
© Mondini, Daniela
BY-NC-SA 4.0
Bd_3_396.tifDownload
Rom, S. Lorenzo fuori le mura, Krypta, Confessio östlich des Grabmonuments, Deckplatte (Foto Mondini 1990)
© Mondini, Daniela
BY-NC-SA 4.0
Bd_3_397.jpgDownload
Rom, S. Lorenzo fuori le mura, Krypta, Fenestella confessionis (Foto Mondini 2005)
© Mondini, Daniela
BY-NC-SA 4.0
Bd_3_398.jpgDownload
Rom, S. Lorenzo fuori le mura, Krypta, Oberseite des Grabblocks (Foto Mondini 2005)
© Mondini, Daniela
BY-NC-SA 4.0
Bd_3_399.tifDownload
Rom, S. Lorenzo fuori le mura, Krypta, Westseite des Grabblockes, ehemals inkrustierte Front mit Fenestella (Foto Mondini 1990)
© Mondini, Daniela
BY-NC-SA 4.0
Bd_3_400.jpgDownload
Rom, S. Lorenzo fuori le mura, Krypta, Westseite des Grabblockes, ehemals inkrustierte Front mit Fenestella (Zeichnung Mondini 1990)
© Mondini, Daniela
BY-NC-SA 4.0
Bd_3_401.jpgDownload
Rom, S. Lorenzo fuori le mura, Krypta, Südostseite des Grabblockes mit abgebrochenem Muster (Foto Mondini 2005)
© Mondini, Daniela
BY-NC-SA 4.0
Bd_3_402.jpgDownload
Rom, S. Lorenzo fuori le mura, Krypta, Aufl age der Säule auf die Deckplatte der Ost-Confessio (Foto Mondini 2005)
© Mondini, Daniela
BY-NC-SA 4.0
Bd_3_403.jpgDownload
Rom, S. Lorenzo fuori le mura, zur „Notkirche“ durch die Mauer P 1 verkürzte Pelagius-Basilika, Hypothese (Vorstellungshilfe Franziska Bächer/Mondini 2007)
© Mondini, Daniela
BY-NC-SA 4.0
Bd_3_405.jpgDownload
Rom, S. Lorenzo fuori le mura, nördli ches Seitenschiff der Pelagius-Basilika, Fragment eines Freskos mit einem heiligen Papst oder Bischof (Foto Ventura)
© Ventura, Domenico
Unknown License - Ask Copyright Holder for Permission
Bd_3_406.jpgDownload
Rom, S. Lorenzo fuori le mura, östliche Außenwand der Krypta, als Kontaktreliquie verehrte Marmorplatte, auf der Laurentius nach seinem Martyrium gelegt worden sein soll (Foto Mondini 1990)
© Mondini, Daniela
BY-NC-SA 4.0
Bd_3_407.jpgDownload
Rom, S. Lorenzo fuori le mura, Ciriaca-Kapelle, Altar (Foto Mondini 2004)
© Mondini, Daniela
BY-NC-SA 4.0
Bd_3_408.jpgDownload
Rom, S. Lorenzo fuori le mura, Kreuzgang, Grundriss (Letarouilly III, 1853, Taf. 268)
© Létarouilly, Paul Marie
Unknown License - Ask Copyright Holder for Permission
Bd_3_409.jpgDownload
Rom, S. Lorenzo fuori le mura, Südvorhalle, letzte erhaltene Arkade des östlichsten Jochs (Foto Mondini 2006)
© Mondini, Daniela
BY-NC-SA 4.0
Bd_3_410.jpgDownload
Rom, S. Lorenzo fuori le mura, Südvorhalle und Konventbauten von Süden, Anonym ADC, Paris Bibliothèque Nationale, Cabinet des Estampes Vb 132z (41) fol. 25 (nach Krautheimer, Corpus II, fig. 11)
© Krautheimer, Richard
Unknown License - Ask Copyright Holder for Permission
Bd_3_411.jpgDownload
Rom, S. Lorenzo fuori le mura, Kreuzgang, Reste der ehemaligen Portalrahmung, Türsturz (Foto Mondini 1990)
© Mondini, Daniela
BY-NC-SA 4.0
Bd_3_412.jpgDownload
Rom, S. Lorenzo fuori le mura, Kreuzgang, Reste der ehemaligen Portalrahmung, Türsturz, Detail der Inkrustation (Foto Senekovic 2002)
© Senekovic, Darko
BY-NC-SA 4.0
Bd_3_413.jpgDownload
Rom, S. Lorenzo fuori le mura, Kreuzgang, Reste der ehemaligen Portalrahmung, seitliches Gewände (Foto Mondini 1990)
© Mondini, Daniela
BY-NC-SA 4.0
Bd_3_414.jpgDownload
Rom, S. Lorenzo fuori le mura, ehem. Südvorhalle, Schnitt, Skizze der unterschiedlichen Niveaus (Zeichnung Franziska Bächer, Zürich 2006)
© Mondini, Daniela
BY-NC-SA 4.0
Bd_3_418.jpgDownload
Rom, S. Lorenzo fuori le mura, Ansicht auf die Ostseite des Glockenturms mit älterer Zungenmauer (Foto Mondini 1990)
© Mondini, Daniela
BY-NC-SA 4.0
Bd_3_419.jpgDownload
Rom, S. Lorenzo fuori le mura, Glockenturm von Süd-Osten, Foto Savio (BH)
Unknown License - Ask Copyright Holder for Permission
Bd_3_420.jpgDownload
Rom, S. Lorenzo fuori le mura, Glockenturm von Westen (Foto Senekovic 2004)
© Senekovic, Darko
BY-NC-SA 4.0
Bd_3_422.jpgDownload
Rom, S. Lorenzo fuori le mura, Glockenturm, Westseite oberer Abschluss mit Schüsseln (Foto Senekovic 2004)
© Senekovic, Darko
BY-NC-SA 4.0
Bd_3_423.jpgDownload
Rom, S. Lorenzo fuori le mura, Glockenturm Ostseite, Eingang zur Treppe vom Dach der neuen Sakristei (Foto Senekovic 2004)
© Senekovic, Darko
BY-NC-SA 4.0
Bd_3_424.jpgDownload
Rom, S. Lorenzo fuori le mura, Glockenturm, Südseite „Systemwechsel“ (Foto Senekovic 2002)
© Senekovic, Darko
BY-NC-SA 4.0
Bd_3_425.jpgDownload
Rom, S. Lorenzo fuori le mura, Kreuzgang, Außenportikus (Foto Mondini 2006)
© Mondini, Daniela
BY-NC-SA 4.0
Bd_3_426.jpgDownload
Rom, S. Lorenzo fuori le mura, Kreuzgang, Grundriss, Erdgeschoß (Barclay Lloyd 1996)
© Barclay Lloyd, Joan E.
Unknown License - Ask Copyright Holder for Permission
Bd_3_428.jpgDownload
Rom, S. Lorenzo fuori le mura, Kreuzgang, O–W-Schnitt (nach Barclay Lloyd 1996)
© Barclay Lloyd, Joan E.
Unknown License - Ask Copyright Holder for Permission
Bd_3_429.jpgDownload
Rom, S. Lorenzo fuori le mura, Kreuzgang, Außenportikus (Foto Mondini 2006)
© Mondini, Daniela
BY-NC-SA 4.0
Bd_3_430.jpgDownload
Rom, S. Lorenzo fuori le mura, Kreuzgang, Ostflügel (Foto Mondini 2006)
© Mondini, Daniela
BY-NC-SA 4.0
Bd_3_431.jpgDownload
Rom, S. Lorenzo fuori le mura, Kreuzgang, N–S-Schnitt (nach Barclay Lloyd 1996)
© Barclay Lloyd, Joan E.
Unknown License - Ask Copyright Holder for Permission
Bd_3_432.jpgDownload
Rom, S. Lorenzo fuori le mura, Kreuzgang, Grundriss, Obergeschoß (nach Barclay Lloyd 1996)
© Barclay Lloyd, Joan E.
Unknown License - Ask Copyright Holder for Permission
Bd_3_433.jpgDownload
Rom, S. Lorenzo fuori le mura, Kreuzgang, Ostflügel, südliches Joch (Foto Mondini 2004)
© Mondini, Daniela
BY-NC-SA 4.0
Bd_3_434.jpgDownload
Rom, S. Lorenzo fuori le mura, Kreuzgang, Westflügel (Foto Mondini 2004)
© Mondini, Daniela
BY-NC-SA 4.0
Bd_3_435.jpgDownload
Rom, S. Lorenzo fuori le mura, Kreuzgang, Ostflügel und Südflügel (Foto Mondini 2006)
© Mondini, Daniela
BY-NC-SA 4.0
Bd_3_436.jpgDownload
Rom, S. Lorenzo fuori le mura, Kreuzgang, Grundriss und Aufriss, aus dem Zeichnungscorpus von Séroux d’Agincourt (BAV, Vat. lat. 9839, fol. 73r)
Unknown
Bd_3_437.jpgDownload
Rom, S. Lorenzo fuori le mura, Kreuzgang, Westflügel, Kranzgesims (Foto Mondini 2004)
© Mondini, Daniela
BY-NC-SA 4.0
Bd_3_438.jpgDownload
Rom, S. Lorenzo fuori le mura, Kreuzgang, Südflügel, Kämpferkapitelle (Foto Mondini 2006)
© Mondini, Daniela
BY-NC-SA 4.0
Bd_3_439.jpgDownload
Rom, S. Lorenzo fuori le mura, Kreuzgang, Nordflügel (Foto Mondini 2004)
© Mondini, Daniela
BY-NC-SA 4.0
Bd_3_440.jpgDownload
Rom, S. Lorenzo fuori le mura, Kreuzgang, Nordflügel, Christoffer-Wilhelm Eckersberg, Gemälde, 1824 (nach Burl. Mag., März 1986)
© Eckersberg, Christoffer-Wilhelm
Unknown License - Ask Copyright Holder for Permission
Bd_3_441.jpgDownload
Rom, S. Lorenzo fuori le mura, Kreuzgang, Nordfl ügel, Kapitelle (Foto Mondini 2006)
© Mondini, Daniela
BY-NC-SA 4.0
Bd_3_442.jpgDownload
Rom, S. Lorenzo fuori le mura, Kreuzgang, Nordflügel, Obergeschoß, Kapitelle (Foto Mondini 2006)
© Mondini, Daniela
BY-NC-SA 4.0
Bd_3_443.jpgDownload
Rom, S. Lorenzo fuori le mura, Kreuzgang, Obergeschoß, Portalrahmung um 1100 (Foto Mondini 2006)
© Mondini, Daniela
BY-NC-SA 4.0
Bd_3_444.jpgDownload
Rom, S. Lorenzo fuori le mura, Grabinschrift des Landolfus († 963), südliche Seitenschiffwand der Pelagius-Basilika (Foto Senekovic 2008)
© Senekovic, Darko
BY-NC-SA 4.0
Bd_3_445.jpgDownload
Rom, S. Lorenzo fuori le mura, Fragment der Grabinschrift einer Maria Senatrix (?) Abschrift von Valesio, 18. Jh. (Foto Archivio Storico Capitolino)
Unknown License - Ask Copyright Holder for Permission
Bd_3_446.jpgDownload
Rom, S. Lorenzo fuori le mura, Grabinschrift des Atto († 1068), südliche Seitenschiffwand der Pelagius-Basilika (Foto Senekovic 2008)
© Senekovic, Darko
BY-NC-SA 4.0
Bd_3_447.jpgDownload
Rom, S. Lorenzo fuori le mura, Grabinschrift des Abtes Bonizo, Nord-Ost-Ecke des Kreuzgangs (Foto Senekovic 2004)
© Senekovic, Darko
BY-NC-SA 4.0
Bd_3_448.jpgDownload
Rom, S. Lorenzo fuori le mura, Grabinschrift des Abtes Bonizo, Nord-Ost-Ecke des Kreuzgangs, Abschrift von Valesio, 18. Jh. (Foto Archivio Storico Capitolino)
Unknown License - Ask Copyright Holder for Permission
Bd_3_449.jpgDownload
Rom, S. Lorenzo fuori le mura, Baldachingrab, heute in der Vorhalle (Foto Senekovic 2004)
© Senekovic, Darko
BY-NC-SA 4.0
Bd_3_450.jpgDownload
Rom, S. Lorenzo fuori le mura, Zusammenstellung von Grabmälern: Nr. 1 verlorenes Baldachingrab; Nr. 2 Baldachingrab, heute in der Vorhalle; Nr. 4 Fieschi-Grab, Ciam pini, Vet. Mon. (1690/99), Taf XLV (Foto BH)
Unknown License - Ask Copyright Holder for Permission
Bd_3_451.jpgDownload
Rom, S. Lorenzo fuori le mura, Baldachingrab, heute in der Vorhalle, mittelalterliches Kapitell und antike Löwenprotome (Foto Mondini 2004)
© Mondini, Daniela
BY-NC-SA 4.0
Bd_3_452.jpgDownload
Rom, S. Lorenzo fuori le mura, erratisches Kapitell eines Baldachingrabs, heute in einer der Kreuzgangsarkaden eingebaut (Foto Mondini 2006)
© Mondini, Daniela
BY-NC-SA 4.0
Bd_3_453.jpgDownload
Rom, S. Lorenzo fuori le mura, Baldachingrab, heute im Kreuzgang (Foto Senekovic 2004)
© Senekovic, Darko
BY-NC-SA 4.0
Bd_3_454.jpgDownload
Rom, S. Lorenzo fuori le mura, Baldachingrab, heute im Kreuzgang, Foto noch in der ehemaligen Aufstellung in der Westvorhalle (Foto um 1900, Foto BH)
Unknown License - Ask Copyright Holder for Permission
Bd_3_456.jpgDownload
Rom, S. Lorenzo fuori le mura, Baldachingrab, heute im Kreuzgang, mittelalterliche „Restaurierung“ eines Löwenkopfes (Foto Mondini 1990)
© Mondini, Daniela
BY-NC-SA 4.0
Bd_3_457.jpgDownload
Rom, S. Lorenzo fuori le mura, Baldachingrab, heute im Kreuzgang, rechte Giebelseite mit mittelalterlicher „Restaurierung“ (Foto Mondini 2006)
© Mondini, Daniela
BY-NC-SA 4.0
Bd_3_458.jpgDownload
Rom, S. Lorenzo fuori le mura, Baldachingrab im Kreuzgang, linke Giebelseite mit Inschriftfragment (Foto Senekovic 2002)
© Senekovic, Darko
BY-NC-SA 4.0
Bd_3_459.jpgDownload
Rom, S. Lorenzo fuori le mura, drittes verlorenes Baldachingrab des Johannes Cintii de Papa, nach einer Skizze von Valesio, 18. Jahrhundert (Foto Archivio Storico Capitolino)
Unknown License - Ask Copyright Holder for Permission
Bd_3_460.jpgDownload
Rom, S. Lorenzo fuori le mura, Vorhalle, frühchristlicher Sarkophag (Foto Senekovic 2005)
© Senekovic, Darko
BY-NC-SA 4.0
Bd_3_461.jpgDownload
Rom, S. Lorenzo fuori le mura, Fieschi-Grabmal, vor 1944 (Foto ICCD)
Unknown License - Ask Copyright Holder for Permission
Bd_3_462.jpgDownload
Rom, S. Lorenzo fuori le mura, Fieschi-Grabmal, Zustand nach der Restaurierung (Foto Mondini 2005)
© Mondini, Daniela
BY-NC-SA 4.0
Bd_3_465.jpgDownload
Rom, S. Lorenzo fuori le mura, Fieschi-Grabmal, Wandmalerei an der West- und Südwand, Zeichnung aus dem Zeichnungscorpus von Séroux d’Agincourt, BAV, Vat. lat. 9843, fol. 51v
Unknown
Bd_3_466.jpgDownload
Rom, S. Lorenzo fuori le mura, Fieschi-Grabmal, Zustand des Daches im späten 18. Jahrhundert, Zeichnung aus dem Zeichnungscorpus von Séroux d’Agincourt, BAV, Vat. lat. 9844, fol. 47v
Unknown
Bd_3_468.jpgDownload
Rom, S. Lorenzo fuori le mura, antiker Weinernte-Sarkophag heute in der Vorhalle (Foto Senekovic 2002)
© Senekovic, Darko
BY-NC-SA 4.0
Bd_3_472.jpgDownload
Rom, S. Lorenzo fuori le mura, Katakombe, Grabplatte eines Mönchs gest. 1309 (Foto Giulia Bordi 2005)
© Bordi, Giulia
BY-NC-SA 4.0
Bd_3_473.jpgDownload
Rom, S. Lorenzo fuori le mura, Katakombe, Grabplatte des Bonagura (Foto Giulia Bordi 2005)
© Bordi, Giulia
BY-NC-SA 4.0
Number in map
38
Church name
S. Lorenzo fuori le mura
Existing
Coordinates
41.9025, 12.52056
Address
Piazzale del Verano, 3
Chronology
-
Keywords
-
Research status
Completed
Published in

Corpus Cosmatorum II, volume 3

2D